0
Skip to Content
Projects
Process
About
Profile
Contact
Open Menu
Close Menu
Projects
Process
About
Profile
Contact
Open Menu
Close Menu
Projects
Process
About
Profile
Contact
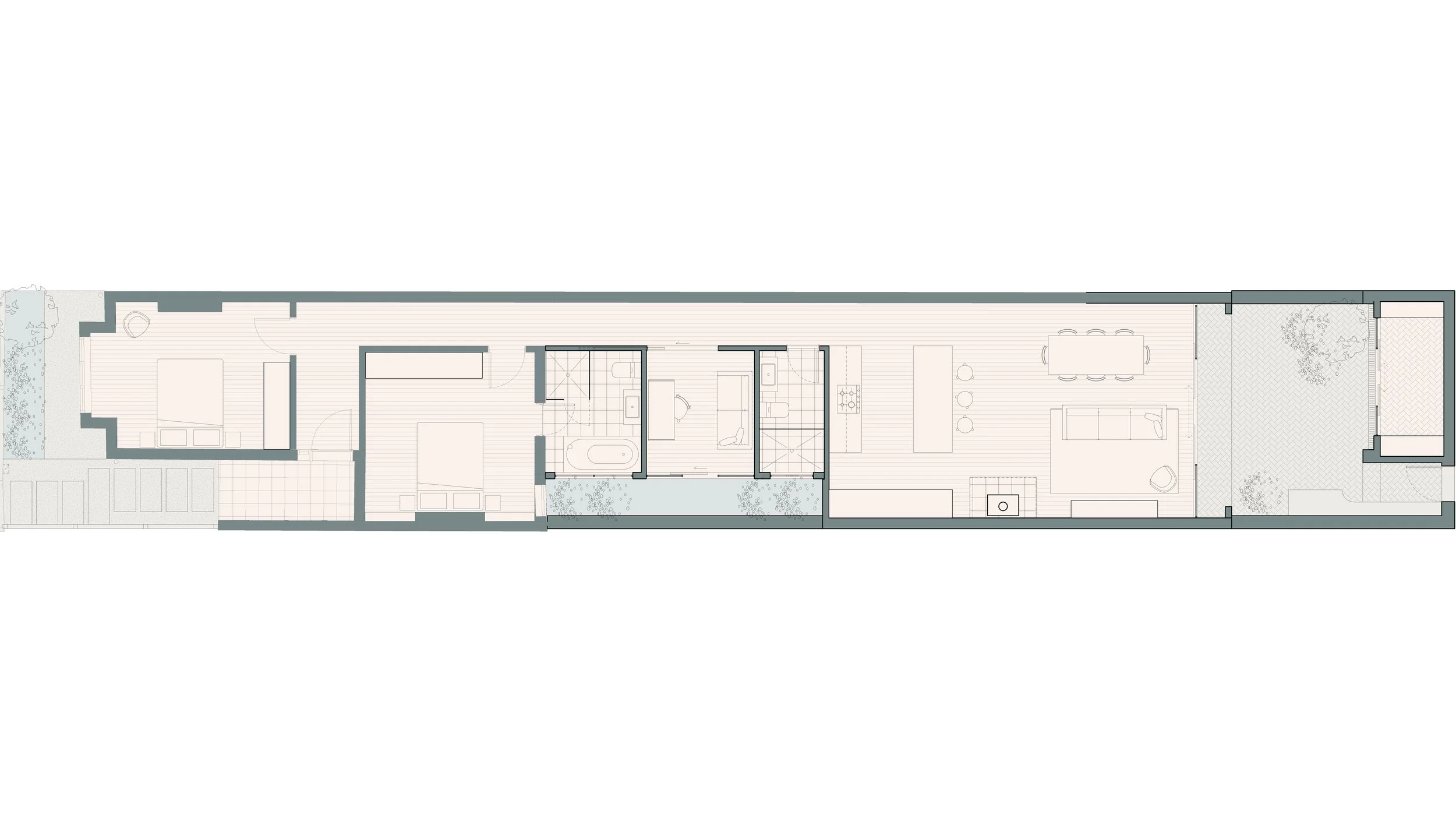
North Fitzroy
Heritage Alterations & Additions
Interiors by Studio Wonder
Next
Next
Middle Park House